メゾンカルム市谷仲之町

| 所在地 | 新宿区市谷仲之町 4-12 |
|---|---|
| 最寄駅 | 都営新宿線 曙橋駅 徒歩6分 |
| 築年月 | 2016年11月 |
| 築年数 | 9.0年 |
| 階数 | 6階建 |
| 小学校 | 新宿区立牛込仲之小学校(331m) |
| 中学校 | 新宿区立牛込第一中学校(1,204m) |
募集部屋一覧
現在、募集中の部屋はありません。
メゾンカルム市谷仲之町の賃料は?
過去の募集賃料データをもとにした時系列データです。
メゾンカルム市谷仲之町の賃料傾向の先読みができるようになります。
十分な賃料データがありません。
掲載終了終了賃貸物件一覧

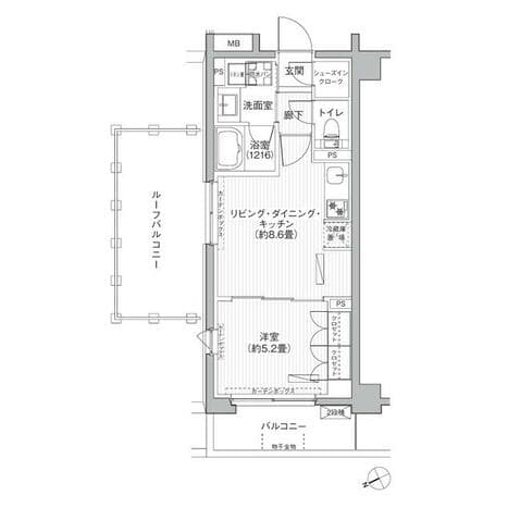
階数:3階
間取り:1LDK / 面積:35.42㎡
さらに詳しい情報をご希望ですか?
グラフをもとに、物件の詳細や条件などのお問い合わせが可能です。
