東雲キャナルコートCODAN15号棟

| 所在地 | 江東区東雲1丁目 |
|---|---|
| 最寄駅 | 東京メトロ有楽町線 辰巳駅 徒歩10分 |
| 築年月 | 2003年7月 |
| 築年数 | 22.0年 |
| 階数 | 10階建 | 地下1階 |
| 小学校 | 江東区立第二辰巳小学校(973m) |
| 中学校 | 江東区立辰巳中学校(927m) |
募集部屋一覧
現在、募集中の部屋はありません。
東雲キャナルコートCODAN15号棟の賃料は?
過去の募集賃料データをもとにした時系列データです。
東雲キャナルコートCODAN15号棟の賃料傾向の先読みができるようになります。
十分な賃料データがありません。
掲載終了終了賃貸物件一覧

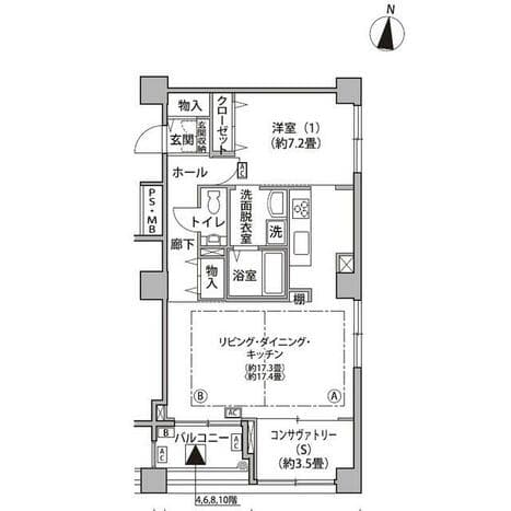
階数:5階
間取り:1SLDK / 面積:68.35㎡
さらに詳しい情報をご希望ですか?
グラフをもとに、物件の詳細や条件などのお問い合わせが可能です。
